Secure Your Slice of Austral – House & Land Packages Selling Fast -0410 835 551
Sheetal Bhattarai and Team Lily White Real Estate are proud to present exclusive house and land packages in the growing suburb of Austral.
These homes offer modern designs, high-quality finishes, and thoughtful details tailored to your lifestyle. Located in a prime area, you’ll enjoy easy access to local shopping villages, schools, major motorways, the upcoming Western Sydney Airport (Badgerys Creek), and the future Southwest Business Park and Aerotropolis.
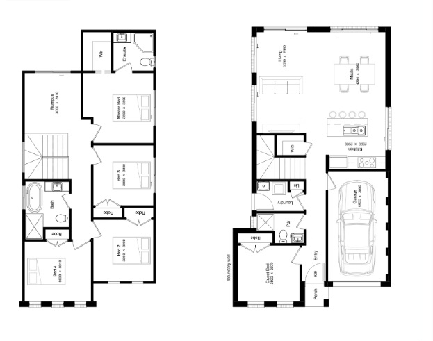
**Home Inclusions **
Lot Size: 303m2
Frontage: 10m
7* BASIX Allowance
Elevate Promotion
Ducted Air Con
Stone to Kitchen
Auto Garage Door
30 year structural guarantee
Driveway
LED lights
Soft Close drawers and doors to kitchen
European Appliances
Dishwasher
Free standing bathtub
2700mm high ceiling to Ground Floor
Tiles to Ground Floor
Quality Carpet to First Floor*
Tiles to Porch & Alfresco*
Award Winning Builder
38+ years building experience
Tile / Window Splashback
Wall Hung Vanities.



