Brand-New Dual Occupancy House & Land Package – Walk to Leppington Station!
Brand-New Dual Occupancy House & Land Package – Walk to Leppington Station!
Discover your dream home in Leppington – just 2 minutes to Leppington Train Station and only 10 minutes to the new Western Sydney International Airport.
✅ Home Features:
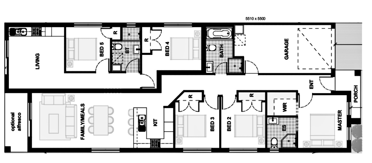
3 bedrooms with built-ins + 2 bedroom Granny flat attached
Designer kitchen with stone benchtop & 900mm freestanding cooker
Open-plan living & dining flowing to alfresco
2700mm ceilings, ducted air-con, LED downlights & blinds
Family bathroom with separate toilet
Lock-up garage with auto door
Fixed price – no hidden costs!
Prime Leppington Location:
Leppington Train Station – 2 min
Edmondson Park Train Station – 10 min
Western Sydney International Airport – 10 min
Leppington Public School – 900m
Leppington Anglican College – 500m
Unity Grammar College – 2.5km
Austral Public School – 4km
St Anthony of Padua Catholic College – 4km
Close to Woolworths Austral & Coles Willowdale
Why Leppington?
At the heart of the South-West Growth Corridor, Leppington offers unbeatable connectivity, excellent schools, shopping convenience, and massive future growth potential.
Call Abhi on 0433 933 756 to secure your dream home today!







